1/35 イギリス巡航戦車 カヴェナンターMk.Ⅰ(後期) キット 組み立て説明後半
1/35 イギリス巡航戦車 カヴェナンターMk.Ⅰ(後期) ガレージキット 組み立て説明後半
このページはガレージキット「1/35 イギリス巡航戦車 カヴェナンターMk.Ⅰ(後期)」の組み立て説明の後半です。
前半はこちら リンク(同じ窓で開きます)
一応、完成見本へのリンクも貼っておきます。リンク(同じ窓で開きます)
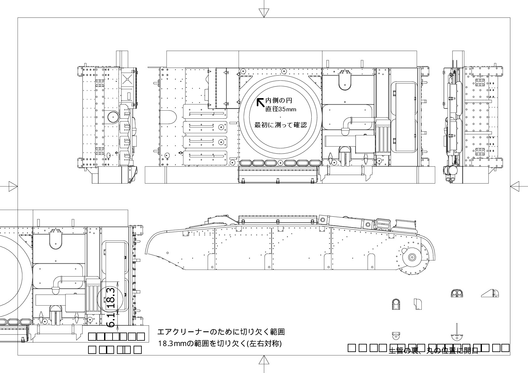
*図面*
このページの説明の途中である別紙参照ってところのための図面です。三面図と土管の図とエアクリーナー部分の図なので、必要なだけ印刷して使ってください。部分的に切って位置ガイドにしたりすると便利です。ただ、図面と原型はどうしても多少の誤差があるのでそこは勘弁してください。
*印刷手順(ウチのPCはWindows7なので10だと少し違うかも、プリンタはものによります)*
下の画像をクリック→別のページに飛ぶのでそこの画像をクリックして拡大→画像を右クリックして「名前を付けて保存」→保存した画像ファイルを右クリックして「プログラムから開く」の「ペイント」を選択→開いたら左上タブの中の印刷の矢印内の「ページ設定」を選択→下の画像を参考に、余白を全て0、拡大縮小を「調整」で100%にする→OK押す→左上タブの印刷の印刷を選択して詳細設定→ものによるが、「等倍」「モノクロ印刷」「フチなし全面印刷」「用紙にあわせるはOFF」あたりを確認→印刷する
プリンタによっては白紙が何枚か出るかもしれないので余分に紙をセットしておきます。印刷範囲からはみ出てますとか言われても無視して続行させて下さい。だいたいこれでいけるはず。印刷したら、砲塔部分の円のうち一番内側の円が直径35mmになっているかさし(定規)で確認してください。なっていれば1/1になっています。なっていなければ、余白や自動縮小を確認して下さい。どうにもわからない場合、いっそ倍率を計算してコンビニで拡大コピーしたほうが早いです。
下のほうに変な四角がいっぱいあるのはこっちのミスなので気にしないで。左下の途切れてる図は斜めになってる車体背面を斜面に対して垂直に見た図です、位置決めの参考にしてください。
この図面はキットの製作のみに使うものとし、転載・改変・配布は禁止とします。何かに使いたい時は連絡して頂いて相談してください。
*目次*(ジャンプ機能は無いです)
・部品の確認~洗浄
・基本的な注意事項
・組み立て順序の説明
・主車体と底部品の準備
・底部品にアーム取り付け
・車体の合体
・足回りの加工
・砲塔の組み立て1
・砲塔の組み立て2
(ここから後半)
・車体上の組み立て1
・車体上の組み立て2
・車体上の組み立て3
・車体上の組み立て4
・塗装と最終組み立て
*目次ここまで*
・車体上の組み立て1
車体の上のなんやかんやを組んでいきます。写真はクリックで拡大して左右の矢印で連続的に見られます。組む順序はある程度前後しても良いのですが、指示してある箇所は順番を守らないと上手くいかない可能性があります。全体に目を通して、塗装の段取りも決めてから作業してください。
1枚目:砲塔リングの組み立て。まずターレットリングを付けてから他の作業をします。リングはプラモのA21(Mk.1や2だと番号が違う)を使います、径が大きい側が上です。接着位置は車体にケガキ線があるのでそれが隠れるようにします、ちょっと線が薄くなってるので見づらい場合は薄く塗装してから少しだけ削ってみてください。位置を決めたあと、内側から接着剤を流す感じで付けると作業しやすいです。
また、写真の位置の車体内側にL字棒を適当に貼って補強しておきます。十分な強度はあると思いますが念の為。
2枚目:砲塔との微調整。クルセイダーのプラモってタミヤ箱のMk.3ならいいんですが、イタレリ箱のは砲塔側と車体側リングとで直径が違ってておかしくなってるんですよね。気付いて直そうと思いつつ忘れたまま完成させちゃったので、このガレキでもガタが出ます。なので、余計な手間で申し訳ないのですが、いっぺん仮組みして様子を見てから車体のリングにプラ板貼って微調整してください。帯状に切ったt=0.3mmプラ板を前後に1/4ぶんぐらい貼ります。また砲塔のリングは左右が少しふくらんでるみたいなので少し削ってください。
これらの作業は仮組みしてみて、まぁこんくらいならいーやって場合はやらなくても大丈夫です。見本ではやっていません。
ついでにここで説明しますが、砲塔はテールヘビーで後ろに傾きやすいので前寄りの天井裏に適当な錘を貼っておくと良いです。金属加工の金型のような精度は無いから微妙なガタが出ちゃうのね、現物微調整で勘弁してね。
3枚目:背中の細長いやつ。この部品、ピンで位置決めするつもりだったんですが目印の位置がちょいずれてました。てことで、リングに接するように&左右は目分量で真ん中に接着してください。
4枚目:横の長い箱。これも位置の目印がよくなかったので修正。黒い四角の位置にある細長い凸部分を削り取ってください。箱はマフラーに接するように付けるので、先にマフラーを付けてから接着します。塗り分けのためにマフラーを後で接着する場合、マフラーを仮組みした状態で箱を接着します。
5枚目:長い箱の位置。内側の線に合わせる(踏まない)、マフラーに接する、で位置決めします。左右の区別はありません。
6枚目:なんかよくわからんもの。コレ、存在は確かなのですが何なのかがイマイチ判然としません。位置的に車体の内壁の外、懸架装置の上になるのですが何なんだろなと。真ん中は開口してるのか段差なだけで塞がってるのかはっきりしなかったです。自分の想像では、車体後部から前部のラジエーターへ行く配管の熱を逃がすための空気出入口じゃなかろうかと。普通に車体上に真っ直ぐ逃がすにはスペースが無いので、内壁の一部を切り欠いて無理やり懸架装置の上にスペース作ってんじゃなかろうかと。この6個が煙突部分で、小型のファン付けて網でフタして…って感じかなって。本来なら不適切な設計ですが、紳士ならやりそう。
付けるのは横の長い箱を付けた後にします。位置は真ん中の凸(アイボルトの土台)に接するようにして、そこかな隣に接するように貼っていきます。箱に0.5mmの板を適当にテープで貼って、それに沿って貼ると楽かと。
・車体上の組み立て2
続けて後ろのほう。背中の上は入り組んでるせいでけっこう塗料が回りにくかったです。こだわり具合によって、全部付けてから塗装するかいくらか分けておくか決めてください、見本は全部組んで塗っています。分ける場合、「マフラー+配管」「双連の箱+板2枚」「箱2種類4個」を分けておけば塗料が回りやすいと思います。
1枚目:マフラーの土管の準備。複製の都合で底に余計な板が付いていますのでこれを除去します。やすりで削ったのでは時間がかかるので、まずニッパーで周囲をざっくり切り取り、倒してからナイフで削いでいきます。ざっとやったら、最後は置いてみて確認しながらヤスリで整えます。
2枚目:エアクリーナーの土管の準備。こっちも同様です。真ん中の配管が刺さる位置に球状の不要部分ができてる場合、適当な大きさのピンバイス(あればリューター)で削ってください。滑って難しい場合、ケガキ針などで突いて傷をつけ、そこをグリグリして下穴にするとすべりにくいです。内側は配管で見えなくなるので完全に綺麗にする必要はありません。フチが欠けている場合、ポリパテを盛ってざっと削り、すぐ取れるので一旦取ってから接着剤で付け直して、それから仕上げると良いです。
3枚目:エアクリーナーの配管の準備。どこまでが部品かわかりにくいですが、写真を参考にしてください。途中で段差になってる2ヶ所には実際は横に張り出しがあって蝶ネジか何かが付いています。拘る場合は実車写真で確認して再現してみて。
4枚目:エアクリーナーの準備。太いゲートがあるので、ボロいニッパーでガジガジして削り取ります。最後はヤスリで整えておきます。ヒレみたいな部分は多少欠ける場合があります、仮組みしてみて、目立つ位置なら接着してからパテで直してください。ただ、位置的に目立たない場合が多いと思います。
5枚目:エアクリーナーの接着の準備。エアクリーナーは車体の2本のリブを跨ぐようにして付くのですが、原型がまずくて跨げません…。どうしても1/35模型では縮尺通りの板厚にはできないので、そのぶん考慮して寸法変えたりずらしたりするわけですが攻めすぎちゃってて跨げるつもりが跨げなかったのです…。てことで「干渉する箇所を削る」(見本はこっち)か「車体のリブを頑張って薄くする」かしてください。
薄くする場合、リブの外側を紙やすりで頑張って削って薄くします、エアクリーナーのほうもできるだけ薄くします。面倒なのでオススメしづらいですが、こっちだと実物通りになります、組んだらあんましわかんないけど…。
干渉箇所を削る場合、リブの後ろ側を別図の範囲で削ります。幅の狭い平刃を使うと楽にできます。ぴったりの幅で削れば、組んだ状態ではあまり違和感の無い程度になります。
6枚目:エアクリーナー周りの接着について。順番は、エアクリーナーに配管を接着→土管を車体に接着→エアクリーナーを車体に接着(配管と土管は接着しない)が良いかと。エアクリーナーと配管は上から0.9mm(だいたいでよい)で、なるべく平行につけます。車体に置いておいて、板にのっけながら付けてもOKです、それでも良い位置に来ます。
車体上の土管の接着位置には目印の凹があります。それを目安に板に接するように付けるか、別図を参考にして土管の裏に穴を開け、目印の凹にも穴開けして0.9mm金属線を挿して位置決めします。線を挿したほうが強度的にも確実です。
最終的に、配管の凸の部分同士が接するようになれば正解です。この配管は茶色じゃないかって意見もあるみたいですが、よくわかんないのでお好みで。個人的にはここは車体色でいいと思います。
7枚目:マフラーの準備。両端の不要部分を取って整えてください。出口のとこは少し欠けることがあるので、その場合は穴が多少塞がってよいのでパテを盛って外を整えて、それから穴を掘りなおします。配管を付ける部分は複製がしづらく、半分くらいの個体が塞がってしまっています。手間ですみませんが、φ2で穴を掘ってください。位置は見た目でわかるかと思いますが、中心をとりづらい場合はまずケガキ針で突いて、小さいドリルで様子を見て、それから2mmで開けるようにします。穴はある程度窪む程度でOKです、深くは掘りません。穴の周りは軽く面取りしておきます。ちなみに、Mk.Ⅳだと両端が少しテーパーになってて薄いカバーもつきます、実車写真を参考にする時は気をつけてね。
8枚目:箱2種類。中のほうにあるやつ、左右の区別はありません。正方形っぽいほうは成型の都合で角にゲートがあるので、少し気をつけて整形します。向きはディテールがある側が内向き。接着位置は写真と別図を参考に。ちなみに、外の面が斜めなのは、車体上面がハッチになってて外に開き、開いた際にマフラーと当たるからです。別に箱を小さくすりゃ斜めじゃなくてよさそうなもんですが、余計なとこに拘るよね紳士って。
細長いほうは段差があるほうが裏です。この段差で車体の段差をかわします。位置は同上で。この箱、用途も造りもさっぱりわかりませんでした。車体の天井は普通に塞がってるので箱が個別に載ってるのは確かなのですが、何でこんな不便な位置にあるのか不明。更に、写真ではヒンジやフタ留めが一切確認できず、どう開くのかもわかりませんでした。写真をいくら見ても表面に何もないただの長方体にしか見えないのです。なのでディテールの無い適当な部品に思われるかもしれませんが、実物がそうなので手抜きじゃないぞ。
9枚目:接着の参考。この写真と別図を参考にしてください。マフラーの土管は端に合わせるようにするとだいたいいい位置に来てるはず。マフラーの配管はφ2mmプラ棒で、長さは8~9mmですが現物合わせで微調整してください。全部接着してから塗る場合、土管とマフラーを接着しておいて、プラ棒をすべり込ませられる長さになるまで少しずつ短くしながら仮組みします、最後にマフラーの穴と土管の内側に接着剤を付けてからすべり込ませます。
マフラーを茶色で塗りわける場合、土管は接着しておいて、マフラーを仮組みしつつプラ棒の長さを決めます。長さが決まったらマフラーにプラ棒を接着して、車体とは別にして塗装します。その場合、マフラーが付く窪みの裏が貫通してしまわないように少し溶きパテを付けておくとよいです、少々なら埋まってもOk、完全に埋めるのはダメ。
また、2種類の箱は塗料が回りこみづらくなるので、塗装の完璧を期すなら別にしておいたほうが無難です。
・車体上の組み立て3
まだまだあるよ。頑張ってついて来てください。
1枚目:後ろの板2枚。左右の区別はありません。車体上の目印の位置にφ1mmで穴を開けます。板の裏の2ヶ所にも開けますが、貫通しないように注意してください。あけたらφ0.9mmの金属線を挿してこれで位置決めします。先に接着してもOkですが、塗装の完璧を期すならこの2枚と上の双連の箱を接着いた状態で車体とは別にして塗装したほうが無難です。ピンのおかげで後からでも位置はぴっちり決まります。
ちなみに、この2枚の板とその前の長い板の下は車体上面に穴があって、3枚の板はそのカバーです。模型では流石に再現してませんが、板は裏側のフチに沿って空気が通るよう隙間があるはずで、この部分が吸排気口のはず。どういう経路かはっきりわかりませんが、たぶんエンジンの吸気はエアクリーナー経由で吸気してマフラーで排気の独立した経路で、少々の砂埃は気にしない単純な車内の換気&排熱目的の吸気排気をこっちの3箇所でやってんだろうなと。
2枚目:双連の箱の準備。折らないように注意しつつ整形します。裏が荒れ気味なので、組んだ時に見える範囲を確認しつつ、見えるとこは整形しておきます。ちなみに、この箱は見ての通りフタで左右を繋いだよくわからん造りです。わざわざ真ん中を開けた形なのは、車体上面がハッチになってて後方に開くので、開いた時に燃料タンクの配管を避けるためと思われます。ネットで検索したら製造中の写真(ハッチ開いてる)もあってそれ見てもらったらわかりやすいかと。模型で作ると実感しやすいでしょ?
3枚目:接着位置。位置をケガいたりしてにので真ん中としか言いようがないです(汗)飛び出してる部分(これが取り付け金具)が平らな所から飛び出ないようにします。
4枚目:OVMの取り付け。実際は最後のほうにやったほうがよいですがここで説明します。個体差はありますが、基本的にはスコップとバールをこの位置に付けています。見本はあくまで付属品とプラモの中身のみで作っていますが、ストック部品などで上手いこと作ってください。スコップの押さえはプラ板で作るならt=0.3mmの幅1mmで作って貼ります。見本は適当ですが両端に小さなボルトでも付ければよりよいです。
5枚目:左後ろにある四角いの。これジャッキ台です。3Dプリントした原型ですがちょっともっさり気味なのが無念…。ちょっとやりづらいですが頑張って整形してください。向きがあり、側面の突起(枠の部分)が途切れてるのが外側です。完成見本も参考にして茶系の色で塗りわけてください。ジャッキ台自体は上下に分かれた2枚の木板なので、真ん中にスジ彫りがあります。接着位置は写真の通りです。枠だけで木板が無くなってる個体も居ますが、その状態にする場合はプラ板で自作してください。
6枚目:燃料タンク取り付け部。この部品は破損や曲げを防ぐため、わざと不要部分を大きくしています。写真内で上下逆でわかりにくいですが、このようにカットします。段差に沿ってケガキ針でコリコリしてからナイフや平刃でグサっといくと早いです。表面の整形はカット前にやるか接着後に行ってください。接着位置は車体の突起(ボルトかリベット)に接するようにします。右側はディテールがちょっと引っかかっちゃうので、ディテールを少し平刃で削ってかわしてください。
なお、金具の部品を実物通りに作る場合、この位置に穴を開けてから接着します。
7枚目:車体後面の細々。牽引用の金具は前後同じで4個あります。まず周囲を整形して、真ん中をφ1.5で開口してください。開口してから、修復用部品の車体のほうから凸を取って中段に2個付けます。車体への接着は写真と別図を参考にしてください。車体前のやつは線に合わせればOkです。
写真のようにディテールを繋ぐように金属線を付けておきます。これが何なのかは判然としません。テールランプと配線かな?とも思いますが写真がやや不鮮明なもの1枚しかなくディテール部分の形状も正確にはわかりませんでした。
8枚目:燃料タンクの取り付け。タンク自体はプラモと同じように作ります。固定バンドは自作するか、ジャンク部品で作ってください。ドOゴンのT-34とかでエッチングのやつ余らせてればそれ使ってもらうのが早いかと、基本的に同じですし。どうせエッチングの残り使うっしょーと思ってここでは細かくは説明しません。見本は適当に自作しています。
燃料タンクの配管は写真のようにディテールを繋いで取り付けます。
9枚目:下側です。自作する場合はプラ板を1mm幅で切っておき、巻くようにタンクに接着します。両端はφ0.28金属線で1mm角くらいのコ字を作って挟むようにすると簡単です。
10枚目:キノコみたいなの。プラモのA62をだいたいこの位置に付けます。プラモの形状がイマイチなのでできればもう少しディテール入れたいところ、系列の戦車で同様のが付いてるので参考に。うろ覚えですけどもこれってグリス注入口でしたっけ?位置と形的にそのはず。
・車体上の組み立て4
今度は前のほうです。あと少しなので頑張って。
1枚目:操縦席の箱。まず、ピストルポートの有無と装甲カバーの開閉を選んでください。ピストルポートは生産時期が早いと無くて遅いと有ります。見本は無しにしましたが、模型の砲塔だと有りのほうが多数派です。ピストルポートの部品は外側に薄い部分があれば取って使います。気泡が入ってる場合は裏からいったん穴を開けてパテを充填してください。本体の図示した範囲にある突起を削って平らにします。そこにポートの部品を貼ります、たぶん上下が少しはみ出すので、削って合わせてください。
カバーはちょっと腕が長いので端を削ります。幅も少し大きいので、気にする場合は右側を一旦切って詰めます。開状態の場合は斜め45度くらいにして車体には接しないようにします。
箱本体の左右の窓はいくらか埋まる場合があるのでケガキ針で内側をなぞって、幅の狭い平刃で埋まった箇所を堀り起こしてください。
2枚目:ラジエーターの装甲カバー。カバー4つは真ん中2つが同じです。このカバーは金属板にした個体のほか、多少形状が違う個体も居るようですが、一番普通の形状にしました。鋳造表現をしたので表面のザラザラはそれです。
接着は右から行うと良いと思います。まず箱を付けて、左右は窓に当たるように前後は少しだけ隙間を開けて付けます。残り3枚は微妙なガタを微調整して、右のやつと前端がそろうようにします。
3枚目:フェンダーの小ライトの覆い。付属の金属板で作ります。この板は市販のエッチング部品の枠の部分から、幅が合うものを見つけて使っています。なので手持ちの量に限りがあり、必要最低限しか付属させていません。そういう事情なので今後、色が違うものになる可能性もありますが製作には関係無いので気にしないで。
長さ20mmを折って2個にしますが、曲げ位置は3mmよりも小さくしないと足りなくなるので注意。ペンチやベンダーを当てる位置は2.7mmぐらいを狙うつもりで作業します、要はアンダー側に振ってね。先に10mmで切って作業するかまとめて折ってから切るかは好みですが、モノが短いので後で切ったほうが楽だと個人的には思います。
4枚目:細かいとこ。ライトの覆いはこの位置の凸の間にはまるように付けます。それからライトを接着しますが、車体中心線側の側面に接着するようにします。このライト、回転させて後ろを向けてることも多いです。
ライトの配線は写真のように、ある程度形を作ってから接着して、端を切って長さを整えます。
境界部分の板は帯状に切って、車体の段差の前に沿うように接着します。実物ではL字の棒材なので合わせてL字になるようにします。
フェンダー横の補強は写真にある寸法で作り、両端を斜めに切ります。この図だと大雑把過ぎるので、完成見本と実車写真で斜め具合を確認してください。車体のディテールの後ろにくっつけて接着します。
写真に書くの忘れてた、内側面のリベット。車体前端とフェンダーとが繋がる部分に、この写真でリベットが追加してあるのがわかるでしょうか?この写真と完成見本を参考に片側4個ずつ計8個を追加してください。おおむね車体側のリベットの後ろに付きます。修復用部品の車体のやつから取って使います。厳密にはフェンダーの外側にも同様にあるはずですが、面倒だしほぼ見えないので無視してよいかと。抜く都合による省略なので手間だけど勘弁してね。
なお、この車体前面とかにある小さな窪みは枕頭鋲のつもりです。
5枚目:予備履帯のとこ。車体にある凸部分の上にプラ板で作った支柱を乗せます。支柱の形状は細かくは不明ですがおおむねこんなんです。押さえは上下2本が本来ですが、面倒だからか下側1本にしてる個体が多いです。1本にする場合も上のほうに小さく穴を掘ってネジ穴っぽくしとくといいかも。予備履帯はプラモのものを少し切って使えばぴったりサイズになります。蝶ネジは写真だとよくわからないのですが、雰囲気優先で付けておきました。実際は違うかも。
6枚目:車体前のライト。写真で示してないですが車体目のライトは単純に真ん中&前端に合わせて付けます。整形はちょっと注意して丁寧に行ってください、フチが削れすぎないように。
ライトのガラス部は部品にはしていません。ここは実車だと平べったいガラスで、「ガラスそのまま」「ガラスに塗装をして真ん中を塗り残してる」「真ん中に穴を開けた薄い金属で覆ってる」のパターンがあるはず。見本は塗り残しパターンのつもりで作っています。適当な透明なプラ板(弁当のフタでOK)からテンプレートとケガキ針を使ってφ6で切り出します。テンプレートが無い人は、ホームセンターや模型屋で買うか、大きめの百均ならあるはずなので買ってください。透明なままにするなら接着はラッカーのクリアなどで行います。真ん中を塗り残すなら適当にマスキングしておきます。真ん中の形状は様々で、現場で適当にやってるのでかなり大雑把です。模型でも適当で良いと思います。長方形、平行四辺形、半円、どれでも正解です。
・塗装と最終組み立て
全部の作業をやったか確認して塗装します。写真が完成見本の塗装直前の状態なので、これを参考にしてください。見本は基本的に全部組んで、脚周り・砲塔・砲身可動部が別になってます。
1枚目:消火器の取り付け。忘れてたのでここで登場、消火器はプラモのA29を使います。ただ、形状がイマイチなのでできればブロンコの英国車両とかから取ったほうがより良いです。仕様では2個付くのですが、プラモが1個のみなので見本は1個にしています。
実車ではそもそも2個を1枚の写真で捉えるアングルが上からなので確認が困難です。ただ、明らかに片方は無い事を確認できる写真が多くあるので、「1個だけ装備」や「0個」の個体もかなり居たようです。土台のみはあるって個体も、土台すら無い個体も居ました。なのでもう好きにしてねって感じです。模型では、プラ板で土台を簡単に作ってそのうえに消火器を載せます。後部のは見本は付けていないので実車写真で確認してください。片方だけつけるなら、前につけて後ろは何も無しが一番しっくりくると思います。
2枚目:前から。付け忘れてる部品が無いかよく確認してください。フェンダー前端内面のリベットとか忘れてませんか?砲塔前面の窓とか忘れてませんか?
3枚目:右側面から。砲塔上面や後面の小物は付けましたか?砲塔左側面の不要なボルト(選択式)は削りましたか?塗りわけの段取りはOKですか?
******
組み立てできたら漬け置きで洗ってプライマーとサフ吹いて塗装します。
カヴェナンターの色は実際イマイチわからないのですが、本土グリーンとか呼ぶ緑色と砂色が普通のようです。2色以上の迷彩のものも居るには居たようですがかなり少数っぽい。マフラーとその配管は他戦車と同様な茶色が正解のはずです、見本は時間なかったので車体色にしています。マーキングはクルセイダーに似た配置で側面に赤白の標識を入れてるものが多く、T****の番号を砲塔に入れているものも多いです。見本はあくまでキットとプラモの付属品のみで作るために貼っていませんが、市販のプラモから適当に引っ張れば楽に再現できるはずです。カヴェナンターを買う人はブロンコの巡航戦車シリーズも買ってるだろうから大丈夫なはず。クルセイダーMk.3に付属のものだとちょっと大きさや内容が合わないんですよね…、タミヤももっと種類を入れておいてくれればいいのにね(タミヤ箱のデカールはタミヤ担当)。
ロコ組みする場合は転輪をサンドイッチする前に内側の塗装をしておいたほうが良いです。ロコ組みした後だと回りきらずに完成後でも地の色が見えてしまっていました。
説明は以上です。いかんせん実車があってなまじ生産数も多いおかげで細部がややこしいですが、そこを作る課程でこの系列の戦車の変遷も読み取れて勉強になる(役には立たんけど)ので、じっくり作ってみてください。例によってわからないとこがあったり部品を失くしたりした場合は対応致しますのでご連絡ください。完成したら写真を送ったりしていただければ嬉しいです。ご希望くださればHPへの掲載もできますのでどしどしどうぞ。




































